Мини-проекты
Дом в Истре
ЖК Discovery
Народное Ополчение (коллажи)
ПИК Мякинино Парк (коллажи)
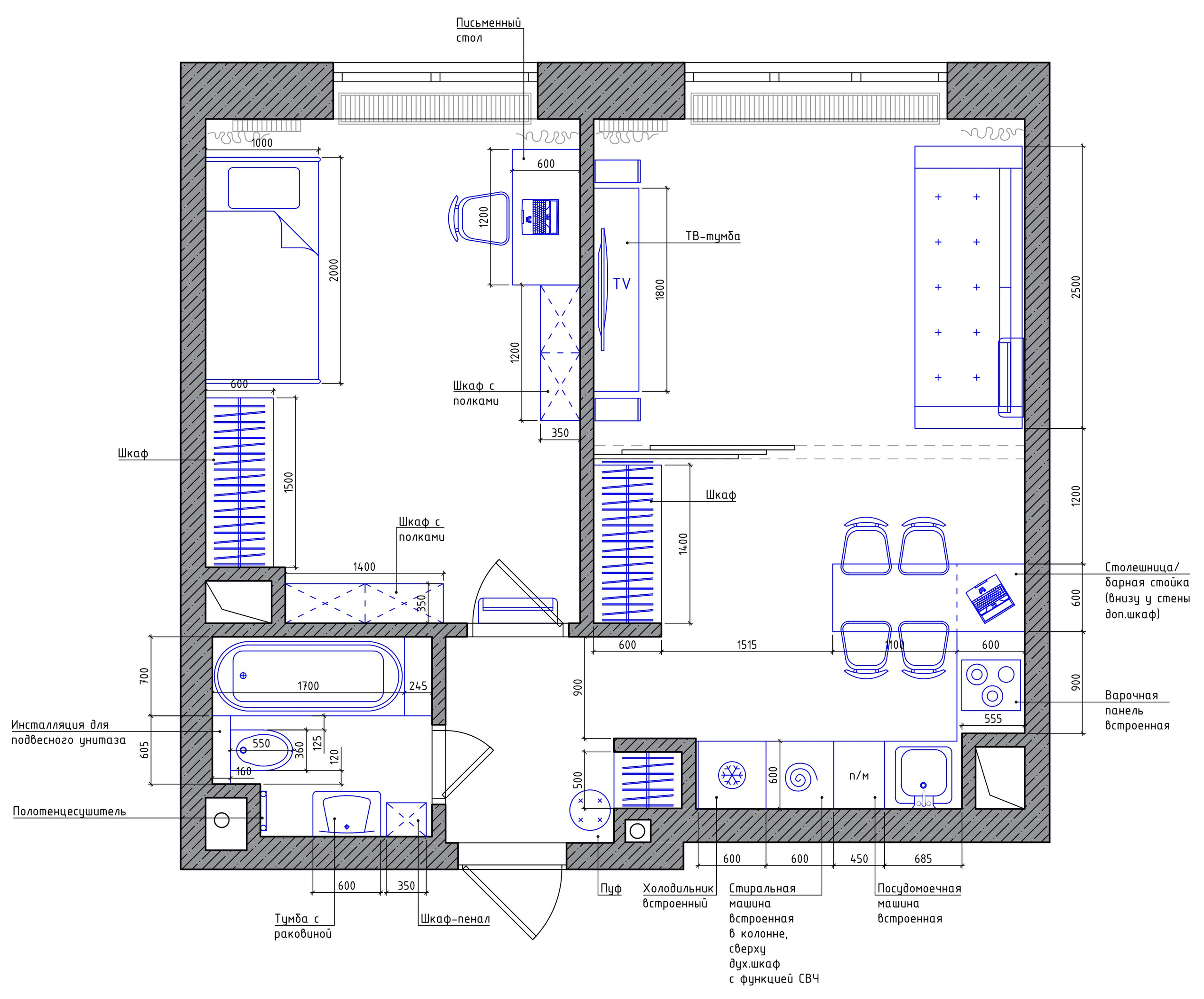
Квартира в Амстердаме
На сайте используются файлы cookie. Продолжая просмотр сайта, вы разрешаете их использование.
Понятно