Мини-проекты
Квартира в Амстердаме
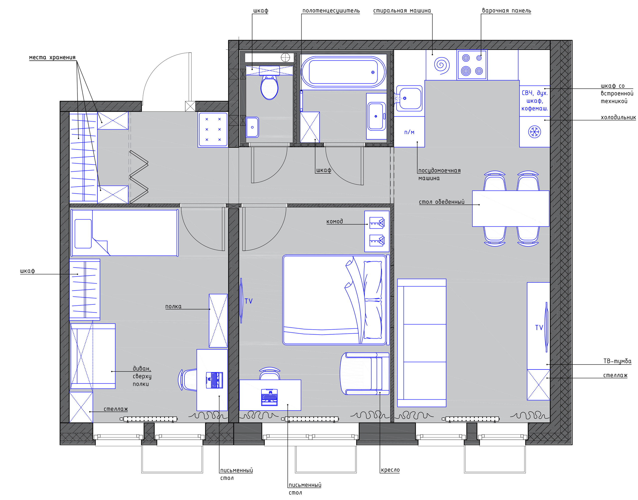
Фили-сити
Дом в Истре
ЖК Discovery
Народное Ополчение (коллажи)
На сайте используются файлы cookie. Продолжая просмотр сайта, вы разрешаете их использование.
Понятно